798万円からの家づくり|ローコスト住宅なら熊本のらくらくハウス
【東区西原平屋モデルハウス】
東区西原平屋モデルハウス オーナー募集中!
販売情報はコチラから
■所在地/熊本市東区西原1丁目6-37 付近
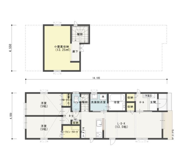
■土地面積:142.74㎡(43.17坪)
■建物面積/61.27
㎡(18.53坪)
■築年月/R8年4月完成予定 ■駐車2台
平面図
建物のポイント♪
WEB内覧動画
■
リビング
■
キッチン
■
洋室
■
小屋裏部屋
※イメージパースです。
モデルハウス特典多数!
・エアコン ・カップボード ・浴室乾燥機 ・カーテンレール ・レースカーテン
・トイレ2か所 ・1階トイレ手洗い ・3面鏡洗面化粧台 ・全室照明 ・シャッター雨戸
・ウッドデッキ などのうれしい特典を多数つけて販売しております。
周辺施設
西原郵便局前バス停まで徒歩約2分
熊本市立西原小学校まで約760m
熊本市立西原中学校まで約865m
・セブンイレブン熊本西原1丁目店まで約250m
・熊本銀行託麻支店まで約335m
・マルキョウ帯山店まで約795m
・鶴田病院まで約920m
お気軽にお問い合わせください♪
お電話096-326-5655もしくは、
「お問い合わせフォーム」
よりお問い合わせください!
このページのトップへ
798万円からの家づくり|ローコスト住宅なら熊本のらくらくハウス
販売情報はコチラから
■所在地/熊本市東区西原1丁目6-37 付近
■土地面積:142.74㎡(43.17坪)
■建物面積/61.27㎡(18.53坪)
■築年月/R8年4月完成予定 ■駐車2台
平面図
建物のポイント♪
WEB内覧動画
■リビング
■キッチン
■洋室
■小屋裏部屋
※イメージパースです。
モデルハウス特典多数!
・エアコン ・カップボード ・浴室乾燥機 ・カーテンレール ・レースカーテン
・トイレ2か所 ・1階トイレ手洗い ・3面鏡洗面化粧台 ・全室照明 ・シャッター雨戸
・ウッドデッキ などのうれしい特典を多数つけて販売しております。
周辺施設
西原郵便局前バス停まで徒歩約2分
熊本市立西原小学校まで約760m
熊本市立西原中学校まで約865m
・セブンイレブン熊本西原1丁目店まで約250m
・熊本銀行託麻支店まで約335m
・マルキョウ帯山店まで約795m
・鶴田病院まで約920m
お気軽にお問い合わせください♪
お電話096-326-5655もしくは、「お問い合わせフォーム」よりお問い合わせください!